138 mq
3
2
LES ARCHES 33
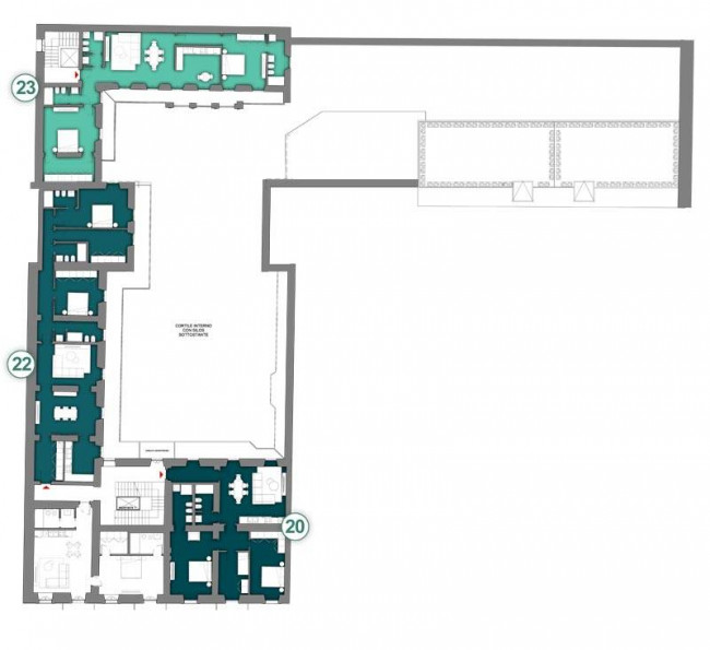
Alloggi di pregio ristrutturati a nuovo in elegante edificio d'epoca - alloggio n° 20 - piano terzo - mq 138
Consegna: fine 2025
Appartamento quadrilocale ristrutturato a nuovo, esposto su corte interna e via, in condominio storico in fase di totale restauro con l'applicazione di soluzioni impiantistiche che garantiscano comfort abitativo e risparmio energetico.
Possibilità posto auto in autorimessa condominiale meccanizzata (Silos) e parti comuni di prestigio.
L'alloggio, sito al terzo piano è così strutturato: Alloggio con 3 camere da letto e doppia esposizione.
Ingresso, soggiorno con cucina a vista e ampio balcone su corte interna, 3 camere (una con balcone), 2 bagni.
Cantina.
Les Arches 33 è una nuova e ambiziosa iniziativa di riqualificazione edilizia che si inserisce armoniosamente in una delle aree più prestigiose di Torino, il Borgo Nuovo.
Ciò che rende davvero speciale questo progetto è l'attenzione ai dettagli e l'incorporazione di elementi impiantistici moderni, che garantiranno il massimo comfort abitativo.
Questo equilibrio tra conservazione del patrimonio storico e l'adozione di tecnologie moderne vuole rappresentare un esempio di eccellenza nel campo della riqualificazione urbana.
Ma il fiore all'occhiello saranno le parti comuni e i servizi condominiali: servizio di portineria; possibilità di parcheggio interno in autorimessa interrata meccanizzata (silos); palestra e sala riunioni condominiale; locale per le biciclette, con possibilità di ricarica per i mezzi elettrici, per favorire la mobilità sostenibile; locale lavanderia comune attrezzato.
L'edificio, originariamente noto come Casa Lessona, è oggetto di un attento recupero edilizio che saprà conservarne la sua natura storica, rispettando e valorizzando le sue caratteristiche architettoniche originali.
Altre soluzioni su www.lesarches33.com

138 mq
3
2