212 mq
3
3
In una piccola e non isolata borgata di campagna, lontano dal rumore cittadino e a due minuti da Santena e Pessione collegate entrambe alla stazione ferroviaria comodissima a Torino.
Proponiamo cascinale risalente all' 800 completamente ristrutturato con volte a vista e un ampio giardino di circa 600 mq circa .
L'immobile è stato tutto interamente ristrutturato con materiali di ottima qualità, trattenendo inoltre tutte le caratteristiche risalenti dell'apoca.
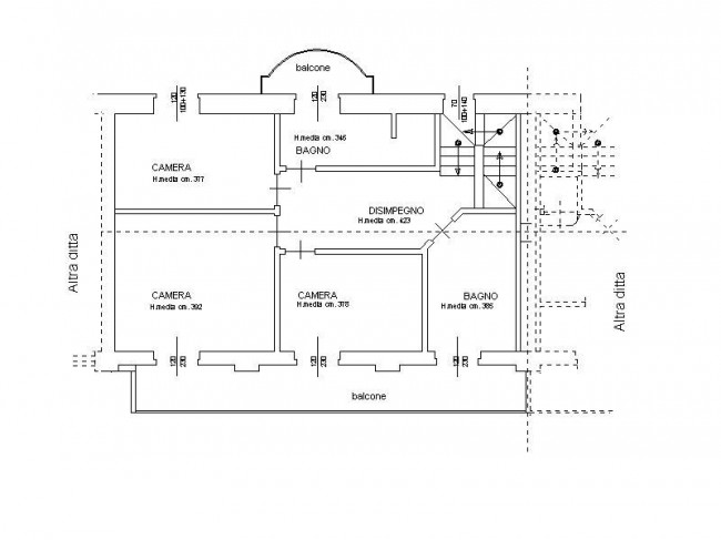
Al piano terra troviamo su salone triplo, più cucina abitabile, dalla quale si ha subito accesso al giardino privato.
Sempre al piano terra troviamo un servizio completo.
Le ampie arcate e tutti i voltini a vista interamente sabbiati caratterizzano gli ambienti, dando così un tono di unicità e calore a tutto ciò che è la zona giorno.
Tramite una comodissima scala interna, si accede al piano superiore, interamente strutturato con travi a vista piemontesi e capriate. Tutto l'intero tetto è stato coibentato con ISOTEC garantendo un'ottima coibentazione e un eccellente risparmio in termini di riscaldamento. L'ambiente è composto da tre camere, bagno con vasca idromassaggio e ulteriore servizio completo adibito anche a locale lavanderia.
Balconi estesi per tutta l'abitazione sul lato a sud e terrazzini completano il primo piano.
Troviamo ancora un box auto doppio interamente coibentato con tetto e travi a vista, piastrellato e finestrato.
L'impianto di allarme è presente sia nel box che all'interno dell'abitazione facilmente sezionabile a seconda delle esigenze del momento.
Il riscaldamento è autonomo, inoltre vi è una termo stufa a Pellet collegata ai radiatori e grazie a questo impianto l'immobile beneficia di ottimi risparmi. Oltre alla caldaia, la proprietà ha messo anche un riscaldamento con pompa di calore e raffrescamento e grazie a quest'ultima miglioria, l'immobile garantisce consumi contenuti ed una efficienza energetica alta.
Nel giardino retrostante è presente un pozzo, al fine di poter irrigare interamente il giardino a costo zero.
OTTIMA SOLUZIONE PER CHI È DESIDEROSO DI ABITARE IN MEZZO AL VERDE IN UNA SOLUZIONE CON POCHISSIMI COSTI DI GESTIONE E DI SEMPLICE FUNZIONALITÀ.
OTTIMA SOLUZIONE
Vuoi vendere la tua casa? Contattaci per avere una valutazione GRATUITA e SENZA IMPEGNO!
Visita il nostro SITO e i nostri SOCIAL per rimanere aggiornato sulle nostre proposte e sulle novità del mondo immobiliare!
Il presente annuncio non costituisce elemento contrattuale.

212 mq
3
3