94 mq
1
2
Studio Cassin e Studio Perrone presentano:
Nel prestigioso complesso storico del Convento San Bernardino, nel cuore centrale e riservato di Chivasso, affascinante Bilocale con Terrazzo, posto auto coperto e cantina.
Ideale per una coppia o per un investimento.
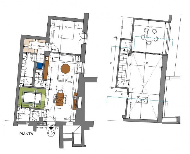
L'abitazione accoglie con un ampissimo soggiorno living con cucina, valorizzato da doppia altezza e luce zenitale, che donano carattere e respiro agli ambienti.
La zona notte comprende camera da letto, doppi servizi, cabina armadi e ripostiglio.
Una scala interna conduce al vero protagonista della casa: uno splendido terrazzo panoramico, affacciato sul chiostro interno e sulla storica Piazza d'Armi.
Uno spazio unico, perfetto per pranzi all'aperto, momenti di relax e serate conviviali in un contesto di fascino, quiete e storia.
Possibilità di box auto doppio a partire da €28.000.
Il complesso, frutto di un attento intervento di restauro e risanamento conservativo, ospiterà solamente 15 unità tra abitative ed uffici, garantendo così un contesto esclusivo, riservato e di alto profilo.
La consegna è prevista tra dicembre 2026 e gennaio 2027, al termine di un progetto che restituisce nuova vita a uno dei luoghi più significativi della città.
Elemento distintivo dell'intervento è la valorizzazione artistica degli spazi comuni: nella corte lato via del Collegio prenderà forma l'installazione permanente "Da qui comincia il mare" dell'artista Nino Ventura, con suggestivi pesci in bronzo e giochi d'acqua.
Nel chiostro-giardino interno troverà invece collocazione la scultura "Rinascita", un grande uovo in marmo bianco di Carrara, simbolo universale di vita, rinnovamento e nuovo inizio, perfettamente coerente con l'anima del progetto.
Vi aspettiamo in cantiere per scoprire anche altre soluzioni con terrazzo o giardino, dove il fascino della storia incontra il comfort dell'abitare contemporaneo.
Visita il sito: www.ilconventosanbernardino.it

94 mq
1
2